REFUNCIONALIZACIÓN CASA CHORIZO P&C

Ubicacion: San Luis, Argentina
Año: 2020.
Tema / Programa: Refuncionalizacion.
Fotografia: Juan Mascia ,Fabricio Ailar.
Autores: ESTUDIO BNAA
Colaboradores: Alberto Dominguez ( restauración ), Samuel Pintureria, Luis Maldonado, Luis Ariel Maldonado.

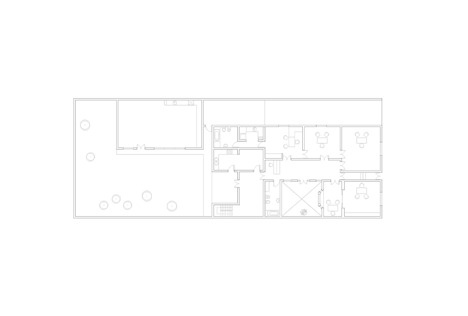
El proyecto se sitúa en el microcentro de la ciudad de San Luis Capital y responde a la refuncionalización de una vivienda construida en el año 1930. La idea principal consiste en adaptar el inmueble para albergar dos sectores diferenciados: un estudio profesional y una vivienda para una sola persona.
A comienzos del siglo pasado era habitual la construcción de pequeñas viviendas de la tipología conocida popularmente como “casa chorizo”, típicas del área central de la ciudad, con sus características espaciales y constructivas bien definidas. En este caso, las intervenciones debían asumir la responsabilidad de reformar un espacio con una fuerte huella histórica, claramente marcada en su espacialidad interior.

Sin modificar la superficie establecida por la casa original, el proyecto propuso realizar intervenciones mínimas que permitieran el funcionamiento independiente del estudio y la vivienda, preservando al máximo la tipología original y evitando intervenir en la estructura principal del edificio.

El proyecto respondió a las siguientes demandas específicas del cliente:

  • El estudio debía ser muy luminoso.
  • Conservar los pisos originales de la vivienda tipo chorizo.
  • Restaurar elementos antiguos como puertas y muebles.
  • Respetar los criterios estéticos propios de las casas chorizo tradicionales.

Se conservó la esencia general de la vivienda y se adaptaron nuevos espacios (boxes) dentro de las habitaciones, respetando la estructura interna original. No obstante, para mejorar la amplitud espacial y la fluidez de la iluminación, se trabajó con una paleta de colores específica que permitió generar una mayor continuidad en los ambientes vinculados al patio interno.

Se restauraron y diseñaron puertas a medida, que funcionan como divisores de los distintos ambientes. La división entre la vivienda y el estudio se resolvió desde el garaje, que ahora funciona como ingreso privado a la parte residencial. En tanto, el antiguo acceso a la vivienda se transformó en el ingreso exclusivo al estudio. Esta decisión permitió una separación clara, sin alterar la estructura original: el estudio al frente y la vivienda en la parte posterior. La división también implicó una cuidadosa restauración de la puerta principal, clave para generar esta dualidad funcional.

La elección y uso de materiales respondió a la intención de vincular cada espacio con el patio interior y la galería, utilizando dameros y colores cuidadosamente seleccionados para potenciar la luminosidad de los ambientes y lograr una galería/patio habitable.
Por último, se trabajó en la restauración de la fachada, recuperando el color original de la década de 1930. La puerta y sus detalles en bronce fueron intervenidos cuidadosamente, pieza por pieza, con el objetivo de devolverle su identidad histórica y estética a esta vivienda tradicional.